NHÀ PHỐ 5 TẦNG 5 CHỨC NĂNG
Ngôi nhà vừa là nơi ở của cặp vợ chồng trẻ, vừa là cửa hàng giới thiệu sản phẩm cùng văn phòng làm việc, vừa có các phòng cho thuê.

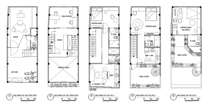
Ngôi nhà 5 tầng xây trên miếng đất hình ống có diện tích 50 m2 nằm trong một con hẻm tại trung tâm quận 1 là tổ ấm của một cặp vợ chồng trẻ. Ngoài một tầng dùng để ở, các tầng còn lại được phục vụ cho công việc kinh doanh.

Ngôi nhà được xây dựng từ những năm 1990 và từng là ngôi nhà đẹp nhất trong khu phố. Tuy nhiên, do không được giữ gìn tốt trong những năm gần đây nên nhà đã xuống cấp khá nặng. Năm 2017, khi tiếp nhận ngôi nhà này, đôi vợ chồng trẻ quyết định cải tạo lại.

Kiến trúc sư Tạ Vĩnh Phúc đã cố gắng tận dụng lại hệ thống kết cấu chính và mặt đứng của ngôi nhà, đồng thời bố trí lại các chức năng bên trong và cải tạo các hệ thống kỹ thuật. Không gian tầng trệt trở thành showroom thời trang của người vợ với khoảng thông tầng cao. Tầng lửng bao gồm một văn phòng làm việc của người chồng và không gian sử dụng chung.

Toàn bộ lầu một là căn hộ của chủ nhà, bao gồm các không gian phòng khách, ăn, bếp ờ phía trước và phòng ngủ, phòng tắm ở phía sau. Hệ tủ kệ đa năng ở phòng khách cũng có tác dụng như một vách ngăn nhẹ, đồng thời tích hợp kệ sách và bàn ăn gấp xếp linh hoạt.

Khu vực bếp với vật liệu gạch bông đơn sắc được dùng cho mặt bàn bếp và ốp tường, mang phong cách nhà Việt thế kỉ trước. Các ô cửa sổ lớn giúp gian bếp được thông thoáng và nhiều ánh sáng.

Phòng ngủ phía sau có thiết kế nhẹ nhàng với chủ yếu là tông màu trắng và xám. Đầu giường được trang trí bằng một bức tranh với ý tưởng như một ô cửa sổ nhìn ra bên ngoài.

Một căn hộ cho thuê được bố trí ở lầu hai với gian bếp và bàn ăn liền tường, bên cạnh ô cửa sổ lớn nhìn ra khoảng sân vườn rộng phía trước. Hệ tủ bếp màu trắng và sàn lát gỗ màu tối giúp các mảng gạch bông trở thành điểm nhấn nổi bật.

Phòng ngủ lớn phía sau lầu 2 có hai khung cửa sổ mở ra hai hướng được sơn màu khác nhau. Kiến trúc sư thiết kế mỗi ô cửa sổ gồm chỉ một cánh cửa với ý tưởng nhìn ô cửa sổ như một bức tranh treo trên tường.

Phía trước lầu hai là không gian sân vườn chung của hai căn hộ cho thuê với tầm nhìn rộng mở ra đường phố bên ngoài.

Tầng trên cùng là một căn hộ cho thuê khác chỉ gói gọn trong một diện tích 25m2 bao gồm phòng đa năng, phòng tắm và một sân vườn khoảng 10m2. Các bức tranh trang trí treo tường có thể mở ra và trở thành những ô cửa sổ.

Tủ bếp đồng thời cũng là kệ TV. Một bàn ăn linh hoạt được tích hợp vào tủ bếp đủ chỗ cho ba người. Khi không sử dụng, bàn ăn được gấp lại để tiết kiệm không gian.

Hệ tủ gỗ được thiết kế mang tính chất đa năng vời giường gấp xếp, tủ quần áo và bàn làm việc. Vào ban ngày, giường được gấp lên để dành chỗ cho các sinh hoạt như tiếp khách, làm việc và ăn uống. Ban đêm, không gian này biến thành một phòng ngủ.

Các phòng tắm thông thoáng nhờ những ô cửa sổ. Những mảng tường gạch bông đa sắc tạo thêm những nhấn nhá cho không gian.

Sống ở đây được hai năm, cặp vợ chồng trẻ cảm thấy hài lòng vì có một không gian vừa ở, vừa làm việc, vừa có thêm thu nhập cho thuê, đặc biệt có thêm cơ hội giao tiếp với người nước ngoài thuê ở đây.
Hy vọng với những chia sẻ của nội thất TPP vừa rồi sẽ phần nào giúp ích được cho Quý khách hàng hiểu thêm về tiêu chuẩn nhà phố 5 tầng.
Nội thất TPPGROUP - Chuyên thiết kế, thi công nội thất gia đình
Văn phòng giao dịch:
CS1: KĐT Đại Kim mới– Q.Hoàng Mai – TP.Hà Nội
CS2: Số 108 Cộng Hòa - P.4 - Q.Tân Bình -TP.HCM
Hotline : 0399 334 356 / 086 9927 888
Email: noithattppgroup68@gmail.com
Xem thêm:
>>> Những mẫu tủ nhôm kính trưng bày hot nhất hiện nay
>>> Kệ tủ trưng bày siêu thị mini
>>> Bàn ghế quán cafe, nhà hàng giá rẻ tại Hà Nội